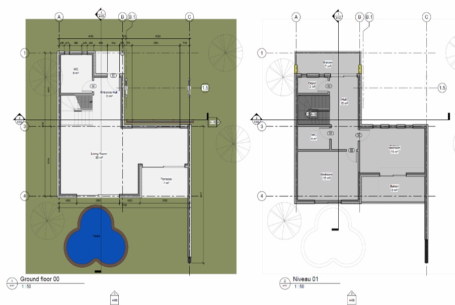
Un studio sur deux niveaux, pur et simple. Le client souhaitait optimiser chaque mètre carré malgré l'exiguïté du terrain.
On a donc conçu un espace minimaliste, dont la fonctionnalité s'exprime dans toute la splendeur du terme. Comme on dit, la simplicité fait la beauté ; et parler de beauté, c'est évoquer l'Art-Chitecture * 4 All et l'inclusivité de l'architecture elle-même.


