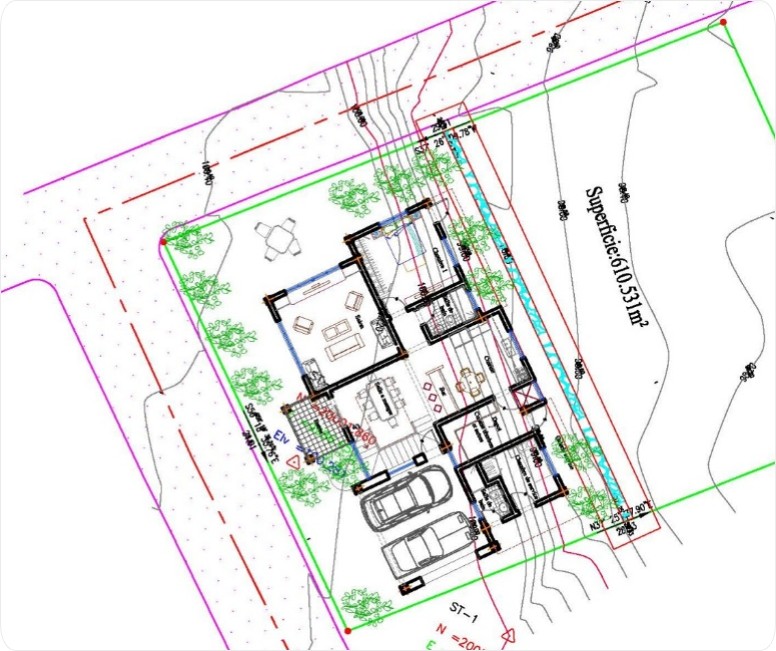
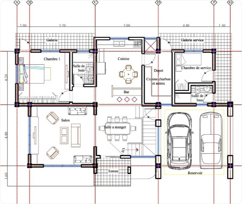
Ce projet est né d'une volonté manifeste : façonner un refuge en harmonie avec le rythme familial. Plus qu'un simple objet Art-Chitectural, on a conçu cette résidence comme un parcours fluide, où chaque espace affirme son identité tout en s'inscrivant dans une unité cohérente.
On a assuré aussi le suivi de chantier afin de garantir le respect des normes et du design architectural.



