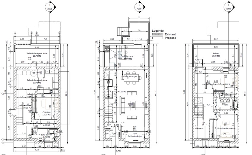
Réhabilitation d'une résidence familiale de deux niveaux répondant aux normes canadiennes. Alliant économie et durabilité, son architecture moderne marie esthétique et contraintes techniques.
Ces dernières sont transformées en éléments de design élégants, portés par une technologie invisible qui rend la maison presque autonome (Net-Zéro).



