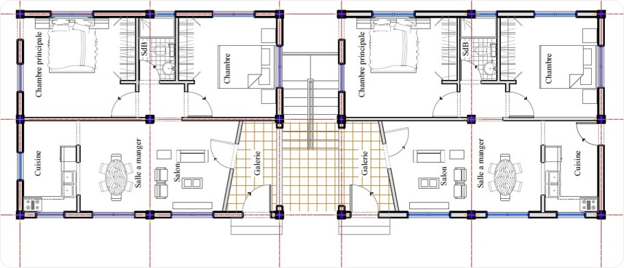
Ce projet consiste en la conception d'un duplex de deux niveaux comprenant une galerie, un salon, une salle à manger, une cuisine, une salle de bain et deux chambres à coucher, le tout relié par un escalier central desservant les étages.
Le concept repose sur une forme triangulaire ainsi qu'un design épuré, afin de respecter les normes architecturales et de favoriser une ventilation naturelle pour un confort optimal.
Nous avons assuré la surveillance du chantier du début à la fin pour garantir le respect des normes et des aspects techniques.


